Parkeringsproblem

15 januari 2007 Eftersom vi har haft stora problem med bilparkeringen på området har vi from 1 januari 2007 infört nya rutiner.

From 1 januari 2007 har Carpark ansvaret för felparkerade bilar på området

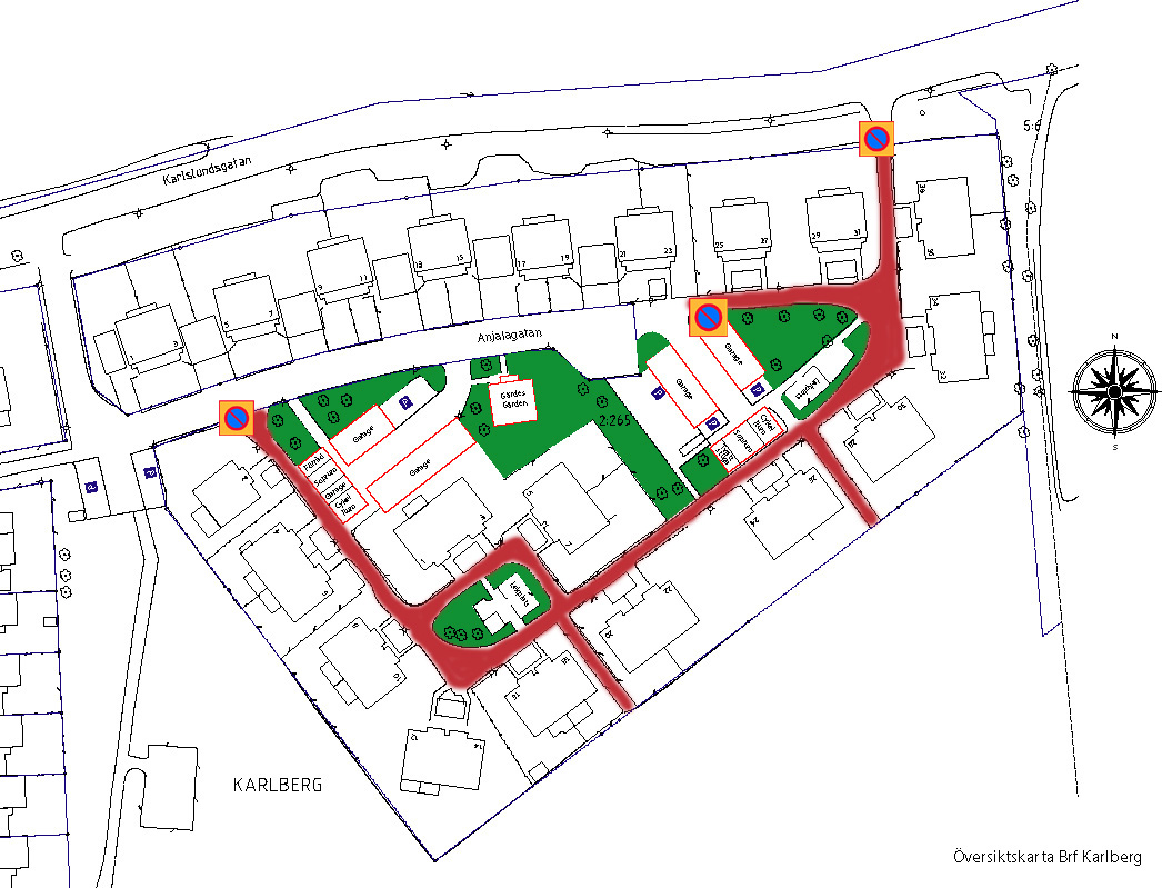
Området har skyltas upp på tre olika ställen och innanför dessa skyltar är alltså parkering förbjuden.

Som vanligt gäller att ni får köra in bilen på området under kortare perioder och då endast för i- och urlastning.

Blir något bötfälld skall detta inte överklagas till styrelsen utan detta görs direkt till Carpark.

Behöver ni parkera bilen på området av någon anledning måste ni kontakta Vicevärd (tel: 0555-689230) för att få ett tillfälligt parkeringstillstånd.

Denna förändring gäller samtliga boende, inga undantag medges.

Klicka på länken för att se vilka områden som omfattas av parkeringsförbudet.

  • 2093088358.gif
    2093088358.gif