HSB BRF
Alhem i Skellefteå
  • Sök
  • Logga in
  • Om Brf Alhem
  • Medlems-och boendeinformation
  • Nyheter
  • Trivsellokalen
  • Felanmälan/Service
  • Kalendarium
  • Bilder
  • Närområdet
  • Felanmälan
    • Sökikon Sök
    • Logga in logo Logga in
    • Välj HSB förening för att se regionalt anpassat innehåll. Sökikon Välj HSB-förening
    Huvudmeny
    • Felanmälan
    • Hem
    • Om Brf Alhem
    • Våra lägenheter
    • Planlösning
    Om Brf Alhem
      • Styrelsen
      • Valberedning
      • Revisor
      • Trivselgrupp
      • Webbredaktör
      • Stadgar
      • Årsredovisningar
      • Våra lägenheter
        • Planlösning

    Planlösning

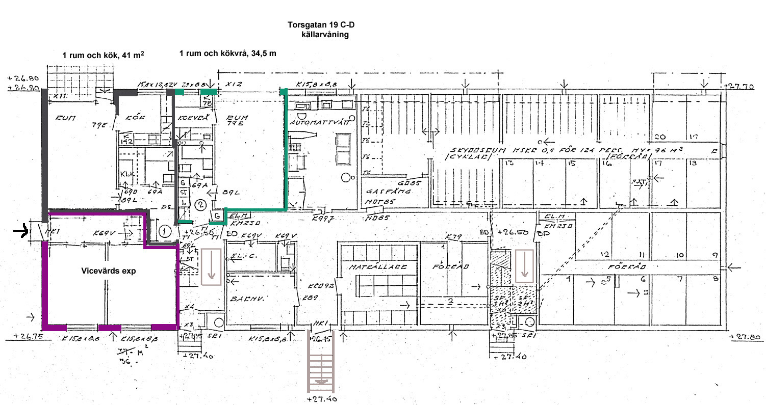
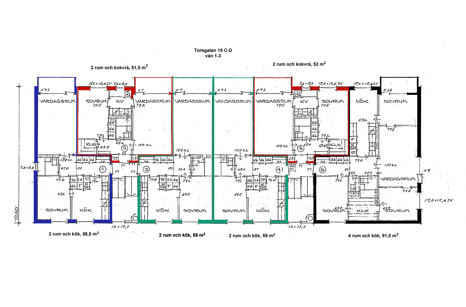
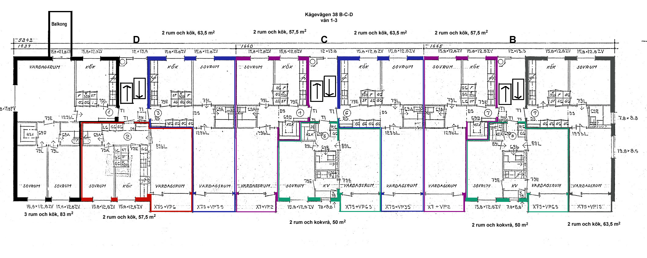
    I Föreningen finns det 280 lägenheter. Lägenheternas storlek varierar från 1 rum till 5 rum och kök.

    Ritningar på våra lägenheter
    Här kan du ladda ner och se alla ritningar på våra lägenheter - planlösning och placering i huset mm.
    Detta är grundritningar så vissa förändringar kan förekomma

    01 Kågev 38 A entréplan Hus B4.jpg Hämta
    02 Kågev 38 A vån 1-3 Hus B4 .jpg Hämta
    03 Kågevägen 38 B-C-D Hus B3 vån 1-3.jpg Hämta
    04 Kågevägen 38 E-F-G Hus B2 vån 1-3.jpg Hämta
    05 Kågevägen 38 H-I-J Hus B1 entreplan.jpg Hämta
    06 Kågevägen 38 H-I-J Hus B1 vån 1-3.jpg Hämta
    07 Kågev 40 A Hus A4.jpg Hämta
    08 Kågev 40 B-C-D Hus A3 vån 1-3 .jpg Hämta
    09 Kågev 40 E-F entreplan.jpg Hämta
    10 Kågev 40 E-F vån 1-3.jpg Hämta
    11 Kågev 40 G-H-I vån 1-3.jpg Hämta
    12 Torsg 19 A-B vån 1-3 Hus C4.jpg Hämta
    13 Torsg 19 C-D källare.jpg Hämta
    14 Torsg 19 C-D vån 1-3 Hus C3.jpg Hämta
    15 Torsg E-F-G vån 1-3 hus C4.jpg Hämta
    16 Torsg 19 H-I-J Hus C1 entreplan.jpg Hämta
    17 Torsg 19 H-I-J Hus C1 våning 1-3 .jpg Hämta
    Visa fler
    Visa färre

    BRF Alhem i Skellefteå

    Torsgatan 19 E
    931 38
    Skellefteå
    vicev.alhembrf@bredband.net

     

    Besök HSB.se
    Läs mer om cookies här
    Cookieinställningar
    Redigera hemsida