HSB BRF
Flickskolan
  • Sök
  • Logga in
  • BRF Flickskolan
  • Nyheter
  • Utrymmen
  • Fastighetsrelaterat
  • Styrelse
  • Ekonomi
  • Felanmälan
    • Sökikon Sök
    • Logga in logo Logga in
    • Välj HSB förening för att se regionalt anpassat innehåll. Sökikon Välj HSB-förening
    Huvudmeny
    • Felanmälan
    • Hem
    • Fastighetsrelaterat
    • Planritningar
    Fastighetsrelaterat
      • Planritningar
      • Byggritningar
      • Elavläsningar
      • Kopplingsschema porttelefon

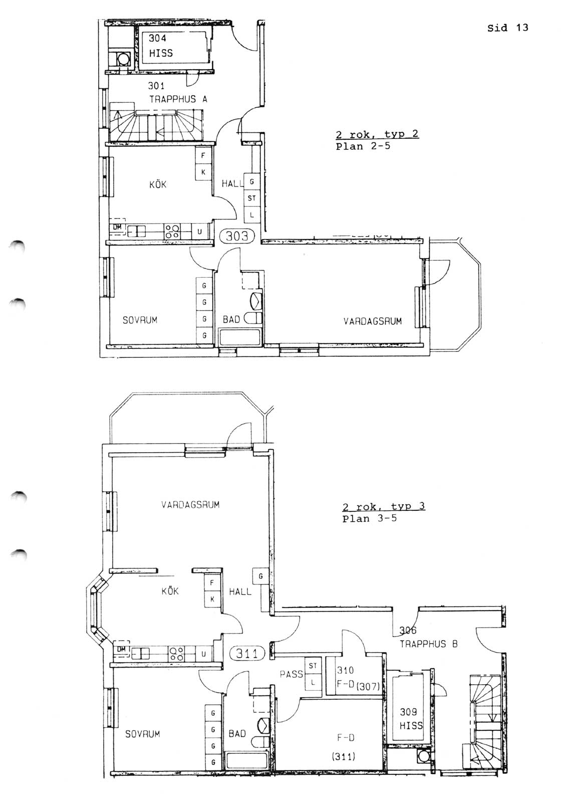
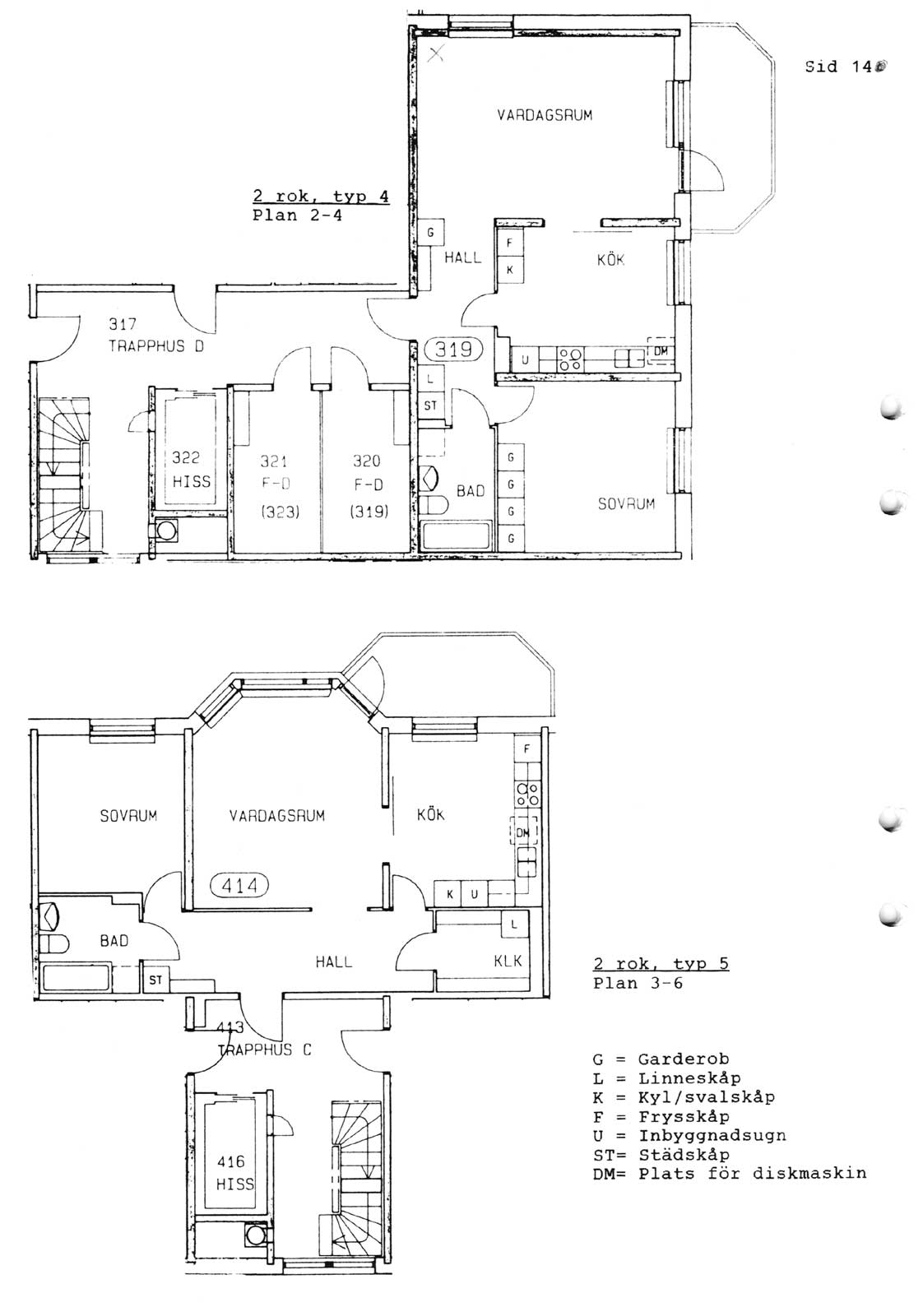
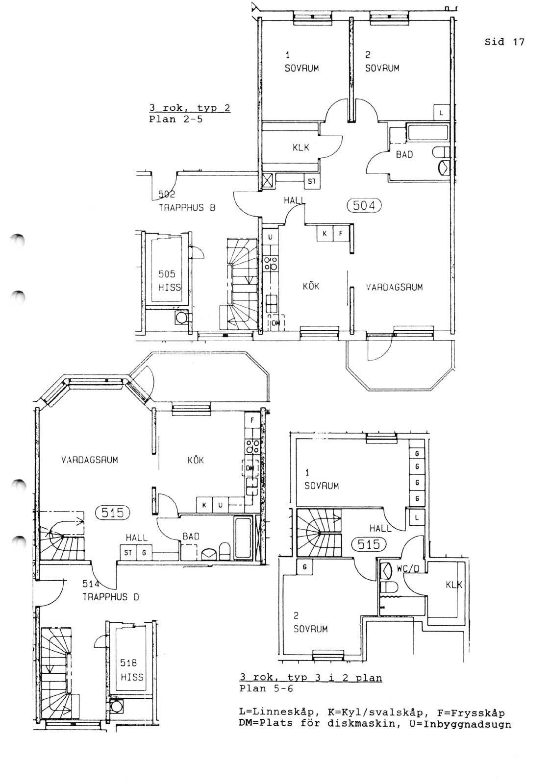
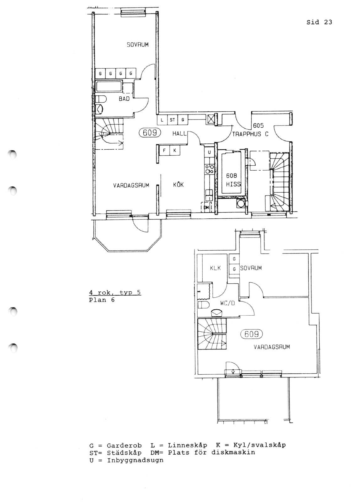
    Planritningar

    Ritningarna visar våra olika lägenheters planlösning vid byggandet av föreningens fastigheter. Smärre förändringar kan ha gjorts av bostadsrättsinnehavaren därefter.
    Översiktsritning Hämta
    Genomskärning Hämta
    1rok1.jpg Hämta
    1rok2.jpg Hämta
    2rok1.jpg Hämta
    2rok2.jpg Hämta
    2rok3.jpg Hämta
    3rok1.jpg Hämta
    3rok2.jpg Hämta
    4rok1.jpg Hämta
    4rok2.jpg Hämta
    4rok3.jpg Hämta
    4rok4.jpg Hämta
    5rok1.jpg Hämta
    5rok2.jpg Hämta
    5rok3.jpg Hämta
    K'llarplan Hämta
    Visa fler
    Visa färre

    BRF Flickskolan

    Bostadsrättsföreningen Flickskolan i Luleå

    Stationsgatan 42 97232 Luleå

    flickskolanbrf@gmail.com

    Besök HSB.se
    Läs mer om cookies här
    Cookieinställningar
    Redigera hemsida