BRF Lokal

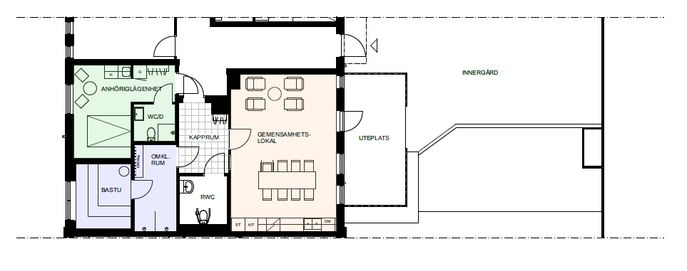
I HSB brf Norrskenet finns det en gemensamhetslokal med anhöriglägenhet, gemensamhetslokal och bastu.

Som inflyttningspresent har HSB Norr möblerat upp övernattningslägenheten och gemensamhetslokalen med en grund som bostadsrättsföreningen sedan själva kan bygga vidare på. Nedan hittar du ritning av lokalen, observera att mått och dimensioner kan komma att ändras under projekteringen.

Bokning av lokal
Gemensamhetslokalen kan bokas via inloggning på webb, mobil eller via den digitala trapphustavlan. Se manualer nedan. Inloggningsuppgifter fins på din taggkvittens som erhölls vid utkvittering av nycklar.

 

 

  • Ritning_Norrskenet gemensamhetslokal
    Ritning_Norrskenet gemensamhetslokal
  • Moodboard Norrskenet övernattningsrum
    Moodboard Norrskenet övernattningsrum
  • Moadborrd_Norrskenet gemensamhetslokal
    Moadborrd_Norrskenet gemensamhetslokal