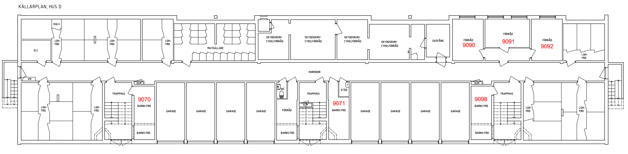
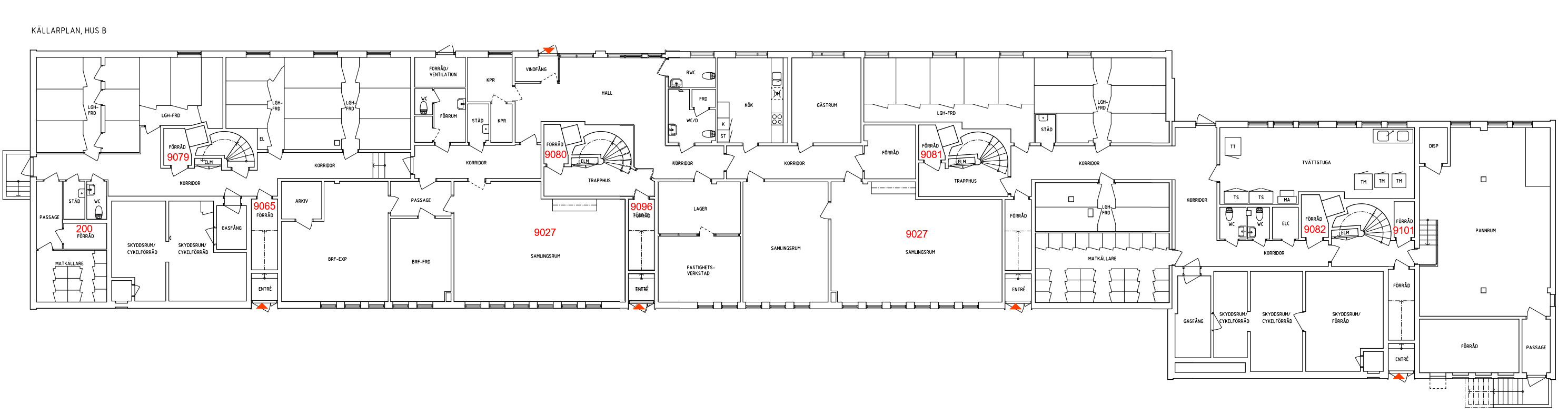
Förråd och extra förråd för uthyrning

I föreningen finns det förråd till lägenheterna samt extra förråd i storlekar från 2 till 24 kvadratmeter. Förråden kan hyras av föreningens medlemmar.

Lägenhetsförråd

Till lägenheten finns ett förråd och en mindre matkällare, dörrarna är markerad med samma nummer som lägenheten och får inte bytas mellan lägenheter.

I förråden får man förvara en uppsättning däck till sitt motorfordon. 

Inga brandfarliga vätskor är tillåtna i förråden, inte heller gasol.

Hyra av extraförråd

Samma regler gäller i extra förråd som för lägenhetsförråden avseende förvaring.

 

Kostnaden för förråden är 30 kr/kvadratmeter och månad.

 

Vill ni hyra förråd, gå in på Mitt HSB med mobilt bankID och ställ er i kö eller kontakta HSB Kund- och Medlemsservice, service.stockholm@hsb.se eller 010-442 11 00 för lösenord. 

När ni anmäler intresse är det avtalsnummer som ska uppges. Nedan finns ritningar med förrådens placering med avtalsnummer samt en förteckning med förrådsnummer, yta och adress.

  • Bild förrådsnummer.png
    Bild förrådsnummer.png