HSB BRF
Ettan
  • Sök
  • Logga in
  • Om brf Ettan
  • Bo i bostadsrätt
  • Boendeinformation
  • Nyheter
  • Information till mäklare
  • Kalendarium
    • Sökikon Sök
    • Logga in logo Logga in
    • Välj HSB förening för att se regionalt anpassat innehåll. Sökikon Välj HSB-förening
    Huvudmeny
    • Hem
    • Om brf Ettan
    • Ritningar
    Om brf Ettan
      • Bilder
      • Ettan i Boningen
      • 50 år med Ettan
      • Protokoll från 1934
      • Hitta hit
      • Ritningar
      • Uppsats
      • Önskehemmet

    Ritningar

    Gatufasad.jpg Hämta
    Gårdsfasad.jpg Hämta
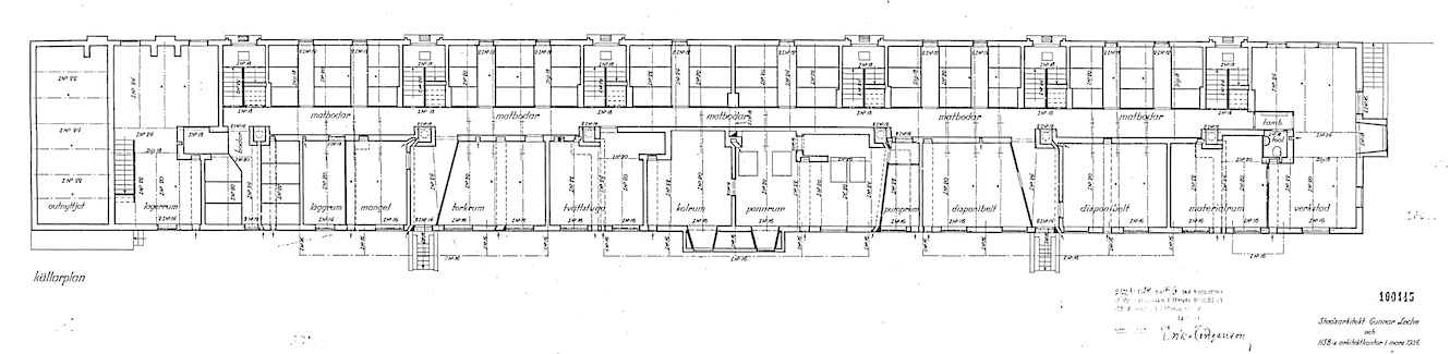
    Källarplan.jpg Hämta
    Bottenplan.jpg Hämta
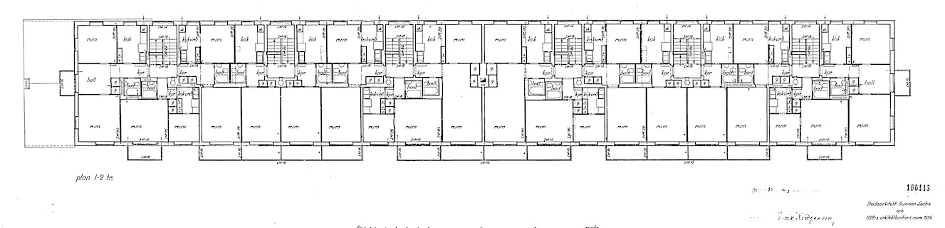
    Plan 1-2.jpg Hämta
    Vindsplan.jpg Hämta
    Butikslokal.jpg Hämta
    Visa fler
    Visa färre

    Besök HSB.se
    Läs mer om cookies här
    Cookieinställningar
    Redigera hemsida