HSB BRF
Västan
  • Sök
  • Logga in
  • Boendeinformation
  • Styrelse
  • Västanvinden - nyhetsbrev
  • Årsredovisningar, protokoll och stadgar
  • Mäklarinformation
    • Sökikon Sök
    • Logga in logo Logga in
    • Välj HSB förening för att se regionalt anpassat innehåll. Sökikon Välj HSB-förening
    Huvudmeny
    • Hem
    • Mäklarinformation
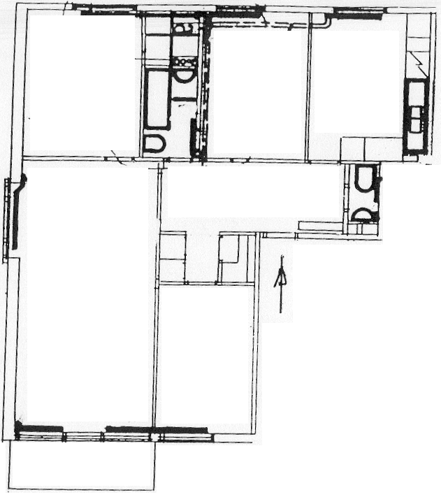
    • 4 rok 93,5 kvm
    Mäklarinformation
      • Om föreningen
      • Gjorda renoveringar
      • Stadgar
      • 5 rok 105,5 kvm
      • 4 rok 93,5 kvm
      • 3 rok 69 kvm
      • 2 rok 60,5 kvm
      • 2 rok 58 kvm

    4 rok 93,5 kvm

    4a_93_5_kvm.gif Hämta

    BRF Västan Expedition

    Rådjursstigen 22
    170 76
    Solna
    brfvastan@gmail.com

    felanmälan: fel@brfvastan.se 

    tel/fax 08-6240820

    Besök HSB.se
    Läs mer om cookies här
    Cookieinställningar
    Redigera hemsida