Parkering & Trafik

Information om trafikreglerna på området

Som boende har du tillgång till ett eget garage, antingen i anslutning till ditt hus eller vid våra garagelängor.
För övrigt finns det fyra olika parkeringsområden på området, dessa är till för gäster men även för oss som bor på området.

Vi har ett antal parkeringsplatser som går att hyra varav fyra har motorvärmaruttag och sex stycken har laddboxar för elbil. Om du är intresserad av att hyra en av dessa platser, kontakta Förvaltartjänst. Om det inte finns någon ledig plats går det att sätta upp sig på kölista.

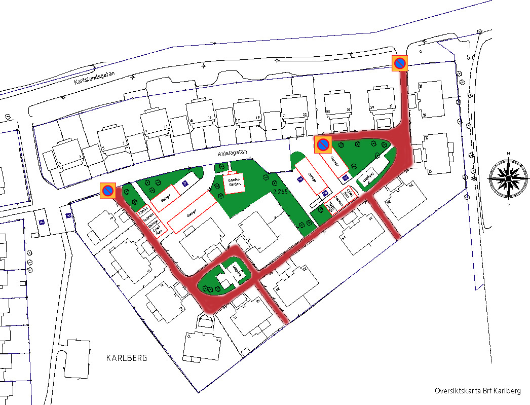
Trafikregler

På Sippolastigen försöker vi minimera bilåkandet så mycket som möjligt. Givetvis får du köra in bilen för i- och urlastning, tänk på hastigheten då vi har många barn på området. Det är GÅ-fart som gäller.
Parkering är inte tillåten.

På Anjalagatan tillåts biltrafik i större utsträckning (fram till vändplatsen) men även här gäller det att vara uppmärksam på hastigheten, undvik i möjligaste mån att parkera på Anjalagatan. Efter vändplatsen gäller samma reglar som på Sippolastigen.

Sidan uppdaterades 2025-12-17

  • Garageportar
    Garageportar