Planlösning

Här hittar du planlösningar för samtliga lägenhetstyper

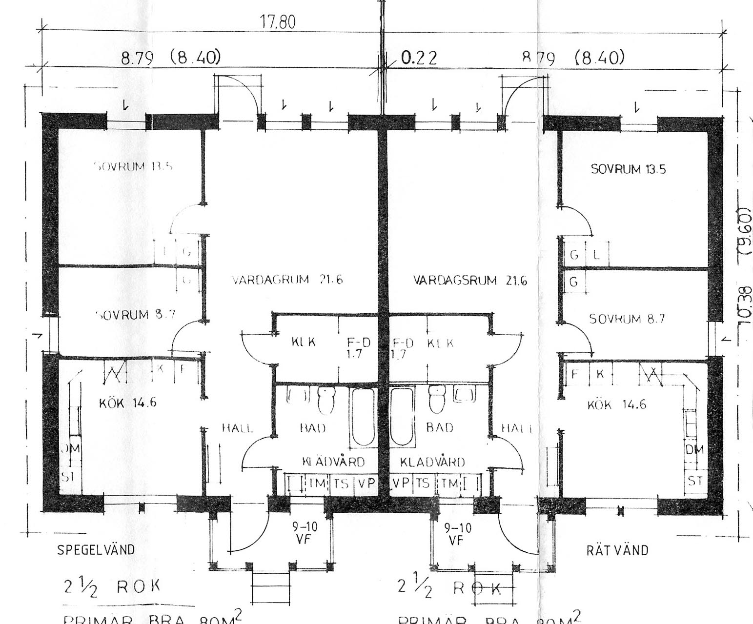
Planlösningen visar de två lägenheter som finns i varje hus.
Lägenheterna är identiska till ytan och även planlösningen är identisk.
Det enda som skiljer lägenheterna åt är att rummen har olika placering beroende på vilken lägenhet du tittar på.

Titta på bilderna

Genom att klicka på länkarna här nedan öppnas de olika planlösningarna i din webbläsare, vill du däremot spara ner filerna till din dator för att kunna titta på dem i lugn & ro så högerklickar du på länken och väljer "Spara Mål Som"