HSB BRF
Loke
  • Sök
  • Logga in
  • Föreningen
  • Boendeinformation
  • Felanmälan
  • Förvaltning
  • Kontakta oss
  • REGISTER
  • Nyheter
  • Till Mäklarna
  • Utförda renoveringar
  • Kalendarium
    • Sökikon Sök
    • Logga in logo Logga in
    • Välj HSB förening för att se regionalt anpassat innehåll. Sökikon Välj HSB-förening
    Huvudmeny
    • Hem
    • Föreningen
    • Planritningar
    Föreningen
      • Brandansvarig
      • Energideklaration
      • Förtroendevalda
      • Lägenhetsförteckning
      • Lägenhetsnummer
      • Planritningar
      • Stadgar
      • Styrelsens adress
      • Vad betyder HSB
      • Våra lokaler
      • Årsredovisningar
      • Årsstämma

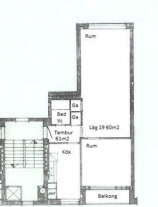
    Planritningar

    LÄGENHETSBESKRIVNING

    Planritningarna är i original från 1939 då huset byggdes. Vissa lägenheter kan ha blivit ändrade på under tidens gång. 

    Planritningar över Brf. Lokes lägenheter
    Läg 1.jpg Hämta
    Läg 2.jpg Hämta
    Läg 3-6-9-12-15-18.jpg Hämta
    Läg 4-7-10-13-16.jpg Hämta
    Läg 5-8-11-14-17.jpg Hämta
    Läg 19-22-25-28-31-34.jpg Hämta
    Läg 20-23-26-29-32-35.jpg Hämta
    Läg 21-24-27-30-33-36.jpg Hämta
    Läg 37-40-43-46-49-52.jpg Hämta
    Läg 38-41-44-47-50-53.jpg Hämta
    Läg 39-42-45-48-51-54.jpg Hämta
    Visa fler
    Visa färre
    Publicerad:2018-12-12
    Senast uppdaterad:2025-08-28

    BRF Loke

    Sallerupsvägen 26 A
    21218
    Malmö
    loke13@live.se

    Besök HSB.se
    Läs mer om cookies här
    Cookieinställningar
    Redigera hemsida