HSB BRF
Mjärdevi 1
  • Sök
  • Logga in
  • Mjärdevi 1
  • Nyheter
  • Kalendarium
  • Om föreningen
  • Information
  • Vicevärd
  • Lägenheterna
    • Sökikon Sök
    • Logga in logo Logga in
    • Välj HSB förening för att se regionalt anpassat innehåll. Sökikon Välj HSB-förening
    Huvudmeny
    • Hem
    • Lägenheterna
    Lägenheterna
      • Sälja
      • Köpa
      • Andrahandsuthyrning

    Lägenheterna

    Bostadsrättsföreningen består av 59 lägenheter fördelade på lägenhetsstorlekar från 1 rok till 5 rok.

    I föreningen fördelas lägenheterna så här.
    1 rok (7 st)
    2 rok (16 st)
    3 rok (17 st)
    4 rok (16 st)
    5 rok (3 st)

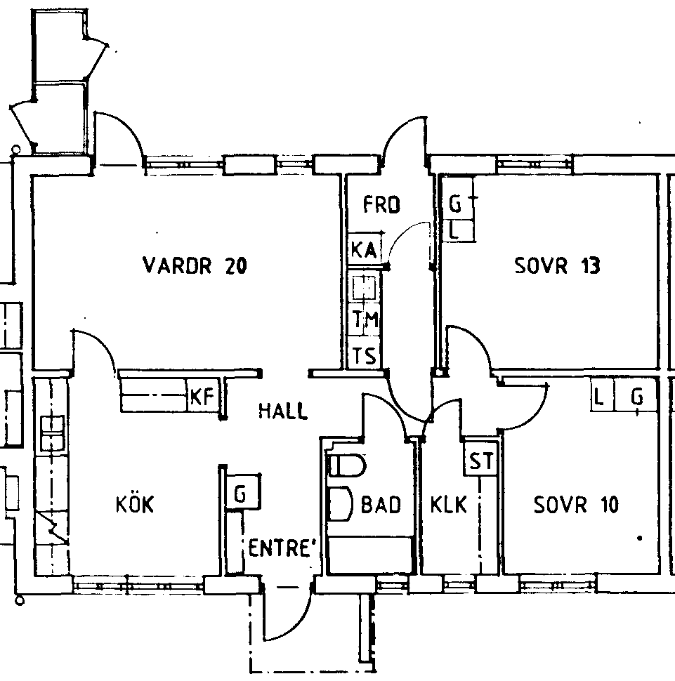
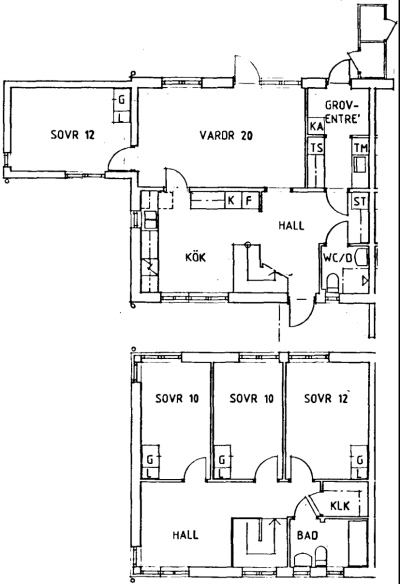
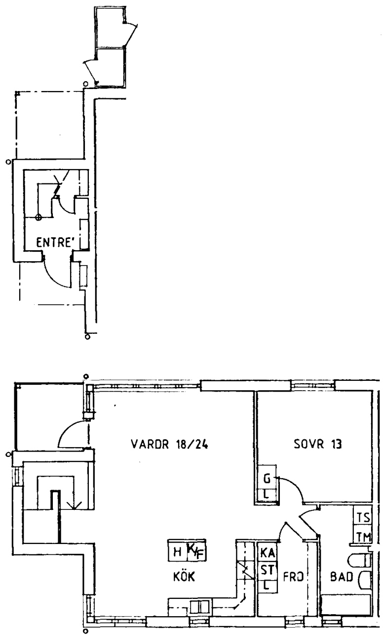
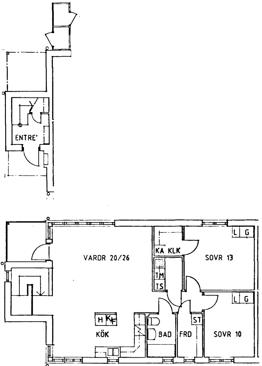
    Planlösningar:

    Ett rum och kök typ 1 bottenvåning Hämta
    Ett rum och kök typ 2 bottenvåning Hämta
    Ett rum och kök typ 3 bottenvåning Hämta
    Två rum och kök bottenvåning Hämta
    Två rum och kök övervåning Hämta
    Tre rum och kök bottenvåning Hämta
    Tre rum och kök övervåning Hämta
    Fyra rum och kök typ 1 Hämta
    Fyra rum och kök typ 2 Hämta
    Fem rum och kök typ 1 Hämta
    Fem rum och kök typ 2 Hämta
    Visa fler
    Visa färre

    BRF Mjärdevi 1



    Linköping

    HSB Brf Mjärdevi 1,
    Box 1993, 581 19 Linköping,
    Vicevärd: vicevard.mjardevi1@gmail.com

    Besök HSB.se
    Läs mer om cookies här
    Cookieinställningar
    Redigera hemsida