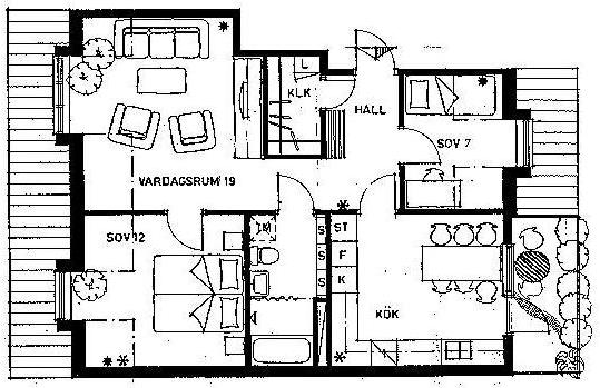
Planlösning 2,5 rum och kök

Brf Billegården har tre olika typer av lägenheter om 2½ rum och kök. Totalt finns det tolv 2½:or i föreningen.

Lägenhetstyp I
Antal rum: 2.5 rum och kök
Yta: 70 kvm
Det finns 2 stycken lägenheter av denna typ.

Lägenhetstyp J
Antal rum: 2.5 rum och kök
Yta: 69,5 kvm
Det finns 9 stycken lägenheter av denna typ.

Lägenhetstyp SJ
Antal rum: 2.5 rum och kök
Yta: 75 kvm
Det finns 1 lägenhet av denna typ.