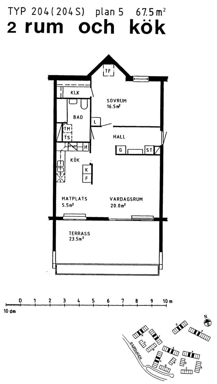
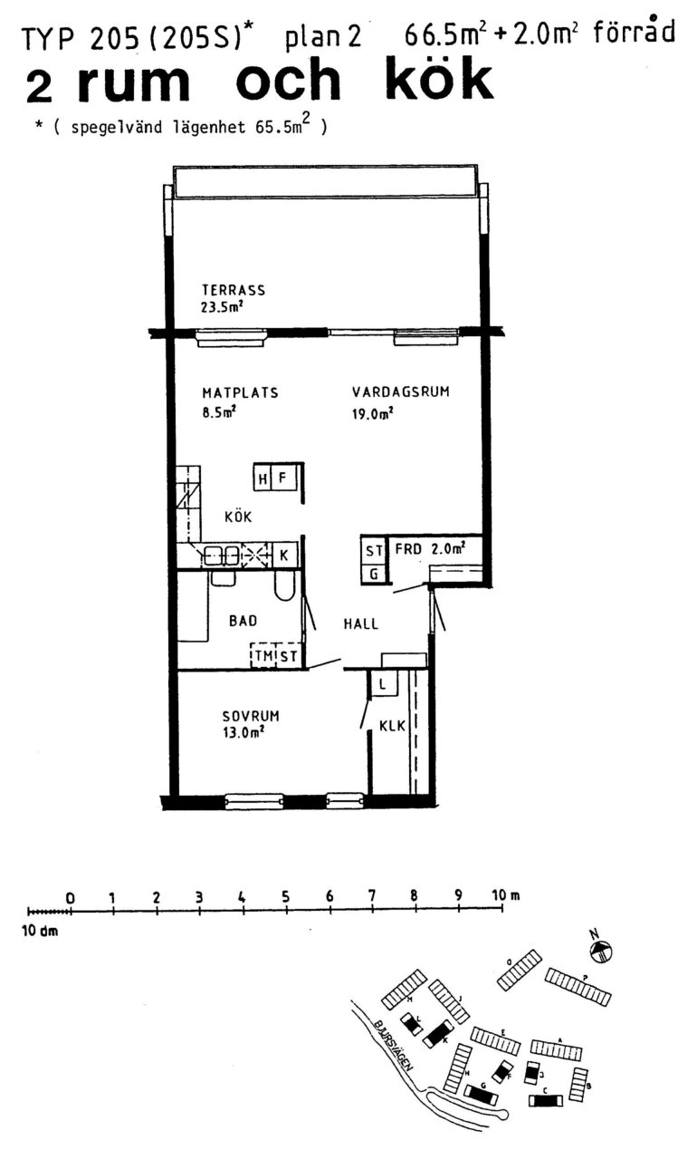
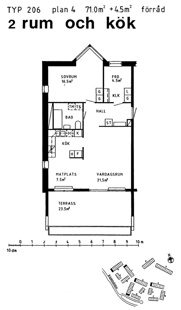
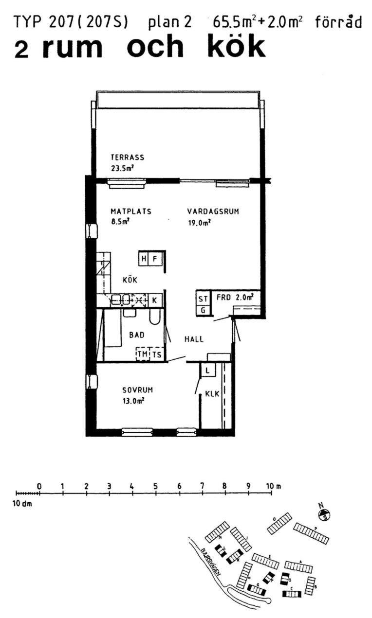
2 rum

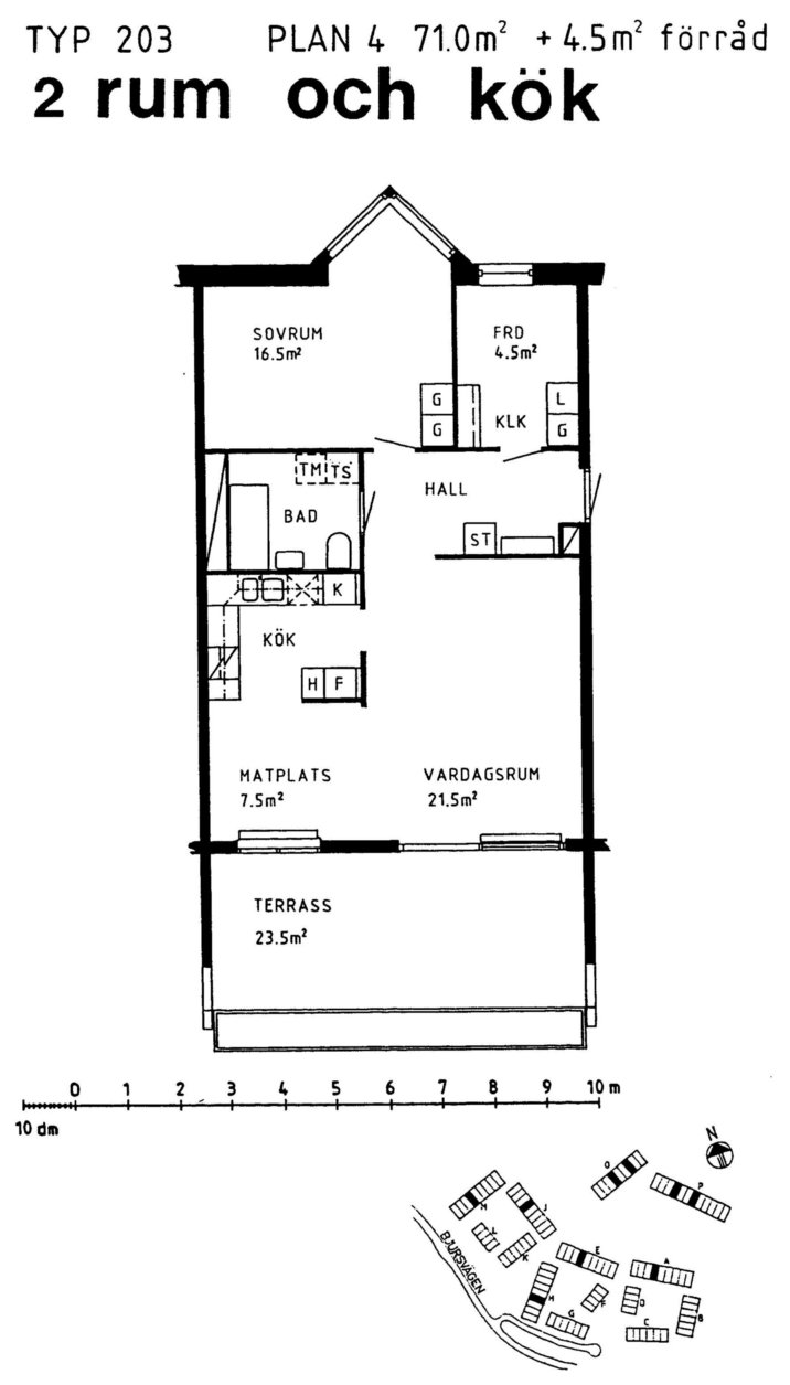
Nedan hittar du ursprungsritningarna på hur tvåorna är disponerade.

Det finns fem typer av tvåor i området. Längst ned på ritningen så ser du var och i vilka huskroppar respektive bostadsrätt finns.