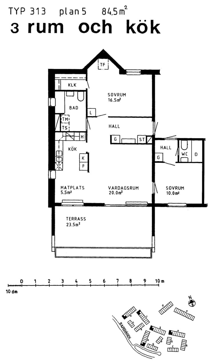
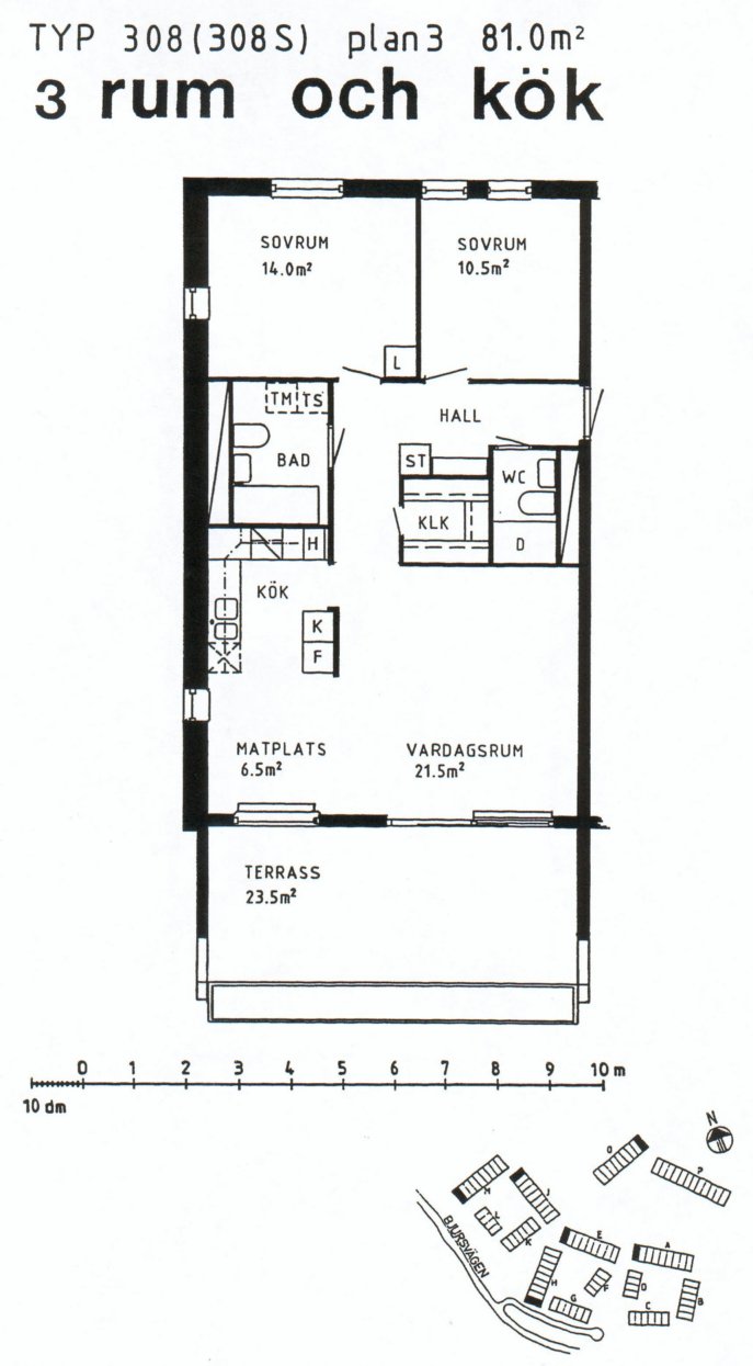
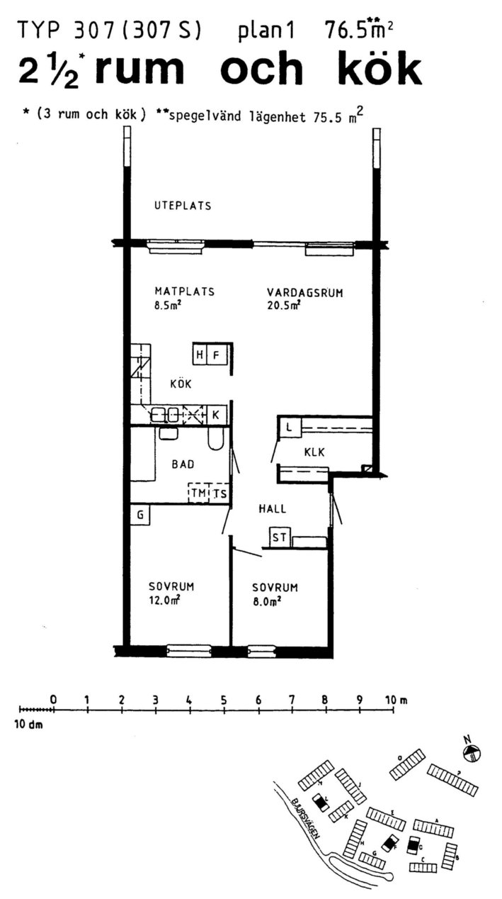
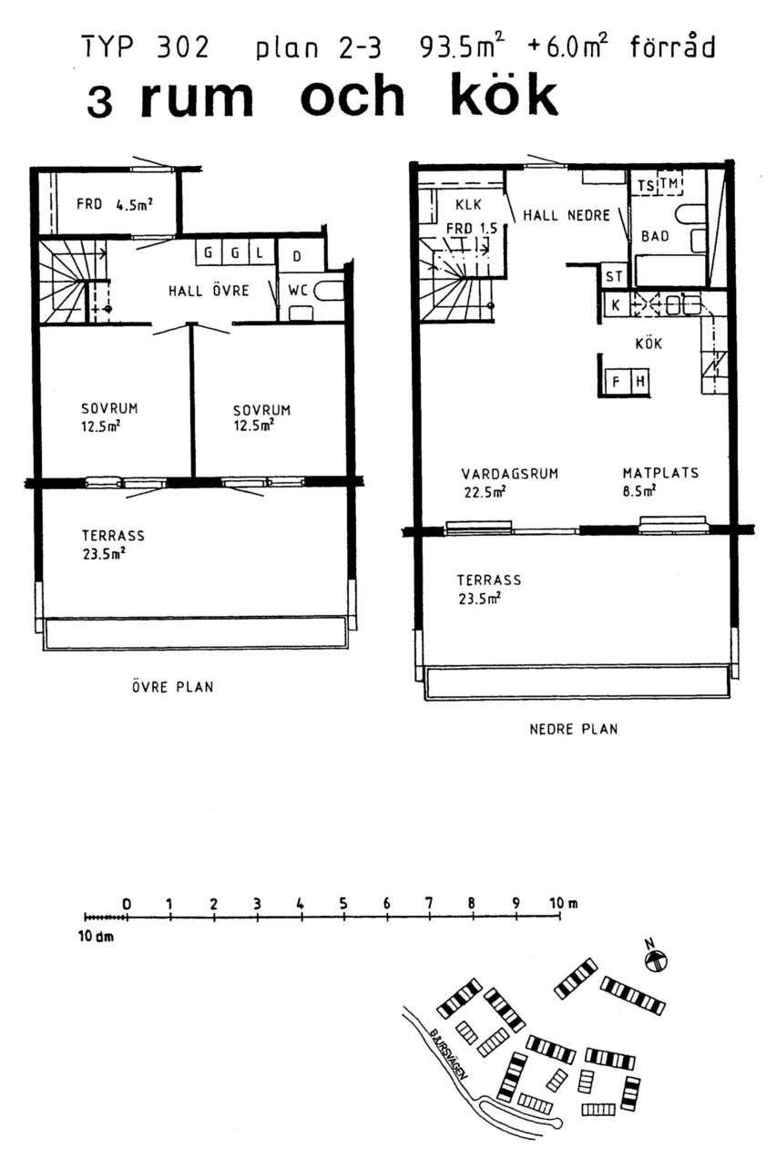
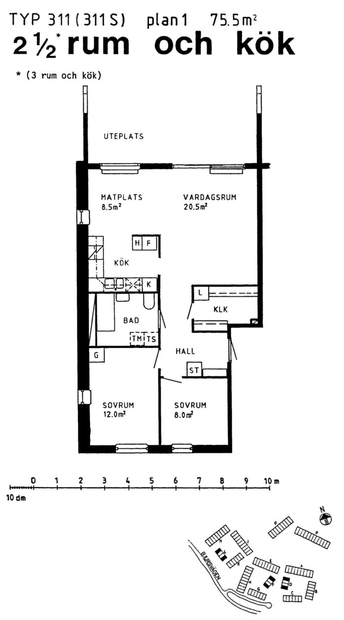
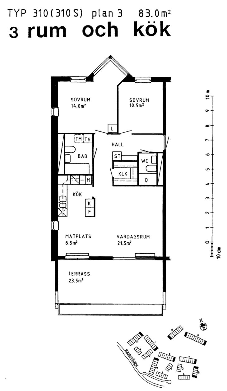
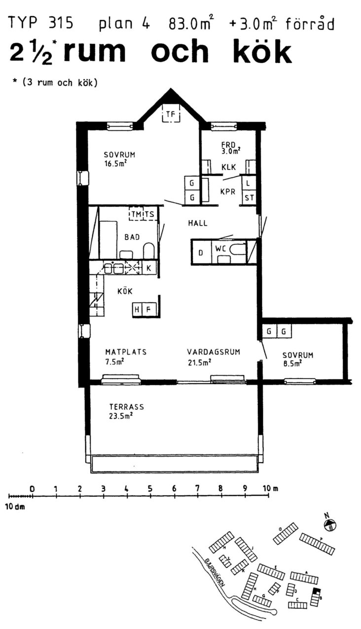
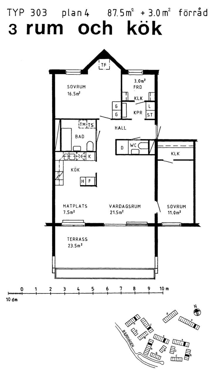
3 rum

Nedan hittar du ursprungsritningarna på hur treorna är disponerade.

Det finns femton typer av treor i området. Längst ned på ritningen så ser du var och i vilka huskroppar respektive bostadsrätt finns.