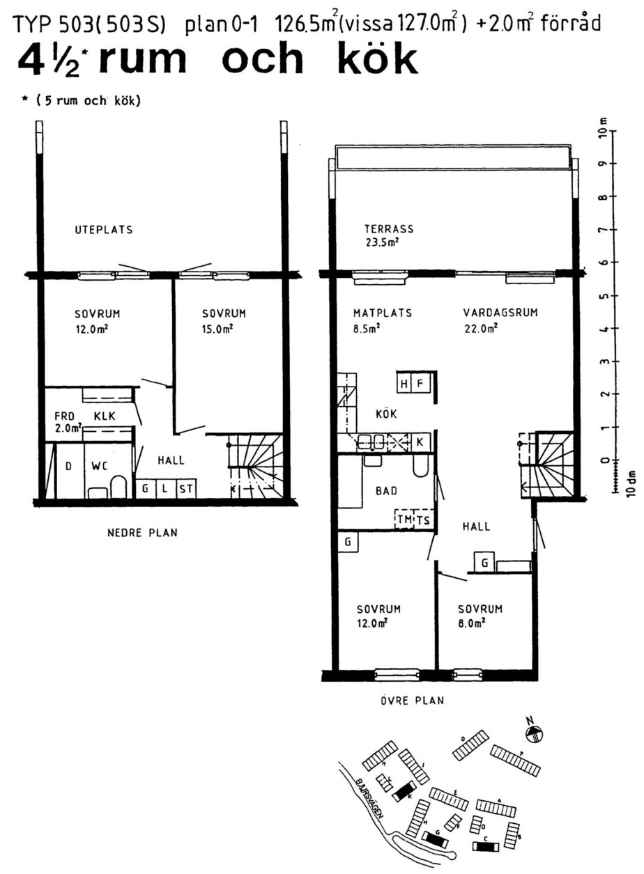
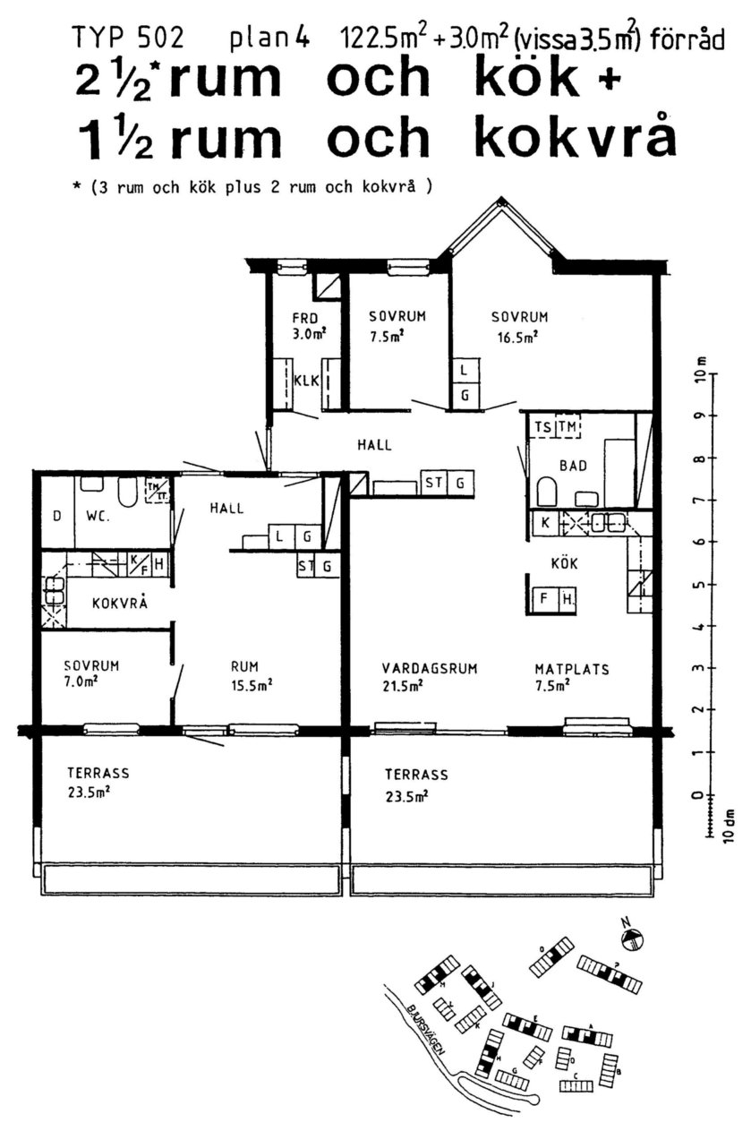
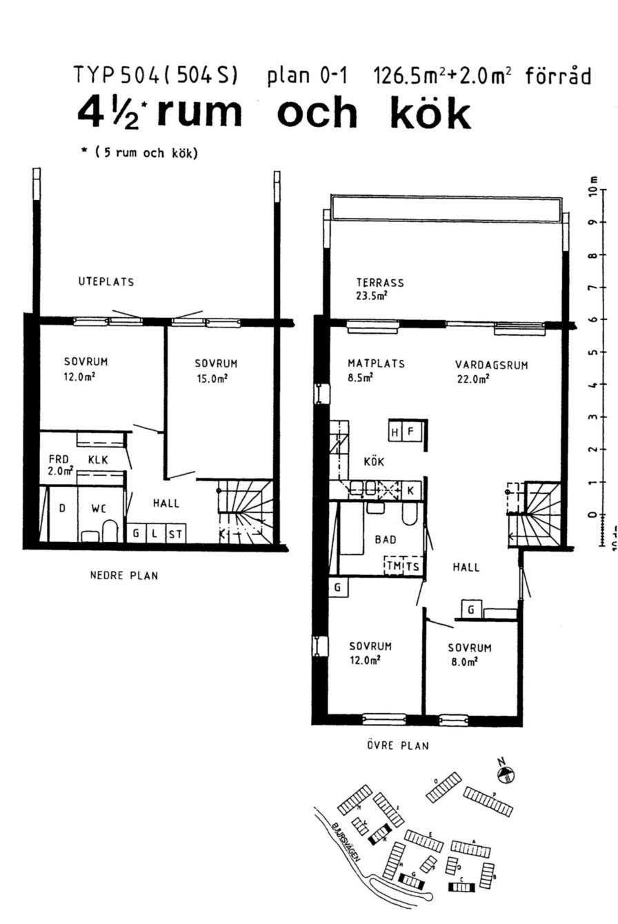
5 rum

Nedan hittar du ursprungsritningarna på hur femmorna är disponerade.

Det finns fyra typer av femmor i området. Längst ned på ritningen så ser du var och i vilka huskroppar respektive bostadsrätt finns. Typ 502 och 505 är eller var så kallade generationslägenheter. Historiskt har det funnits 14 stycken i området men 13 av dessa har delats. Därmed finns det endast en generationslägenhet kvar. Typ 503 och 504 är etagelägenheter i två plan.