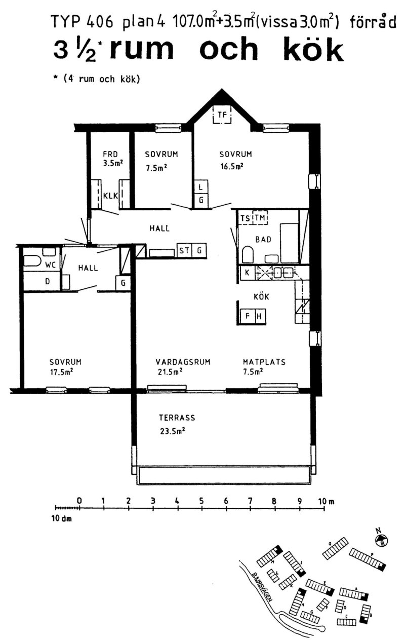
4 rum

Nedan hittar du ursprungsritningarna på hur fyrorna är disponerade.

Det finns sex typer av fyror i området. Längst ned på ritningen så ser du var och i vilka huskroppar respektive bostadsrätt finns. Typ 403 och 406 har en uthyrningsdel med egen ingång. Om du vill hyra ut den delen så räknas det som om du har inneboende vilket inte kräver styrelsens godkännande.