Vi stödjer inte längre, fullt ut, webbläsaren Internet Explorer (version 11 eller tidigare) då detta är en gammal webbläsare som inte längre underhålls av Microsoft och inte fungerar med modernare webbteknik. Därför rekommenderar vi att ni istället använder er av någon av dessa webbläsare: Google Chrome, Mozilla Firefox, Microsoft Edge eller Apple Safari

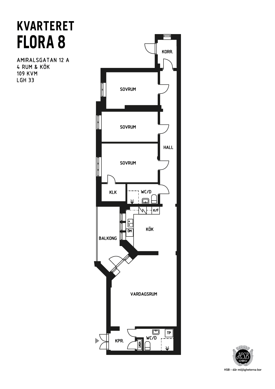
Amiralsgatan 12 A

Malmö, Rörsjöstaden
Det är svårt att inte bli förälskad i den här lägenheten redan vid första steget in. En bostad av absolut toppklass där varje detalj känns genomtänkt – i ett nyrenoverat hus som varsamt tagit tillvara på det gamla och lyft fram dess själ.

Här bor du mitt i stadens puls, men innanför de dubbla fönstren infinner sig ett lugn och ett fantastiskt ljus. De vackra originaldetaljerna samsas med moderna materialval och skapar en miljö som känns både hemtrevlig och stilren.

Den stora balkongen mot gården blir snabbt din favoritplats – perfekt för morgonkaffet, middagar i kvällssolen eller lata helger.

Köket är modernt och inbjudande med matplats, keramikhäll och diskmaskin – en plats att både laga mat och umgås i. Det helkaklade badrummet med egen tvättpelare ger den där extra bekvämligheten i vardagen, och klädkammaren löser förvaringen på bästa sätt.

Observera att huset saknar hiss.

Kabel-tv och bredband finns självklart i fastigheten.

En bostad som verkligen känns som hemma – välkommen att upptäcka den på plats.
-
Alla är välkomna att söka HSB Malmös hyreslägenheter, men de tilldelas i första hand dem som är medlemmar och bosparar hos HSB. Ni hittar mer info om vad det innebär att vara bosparare på https://www.hsb.se/malmo/bospar/sa-borjar-du.

HSB Malmös uthyrningspolicy hittar ni här: https://www.hsb.se/malmo/uthyrningspolicy

-

Tillsvidarekontrakt

Tillsvidarekontrakt med tre månaders uppsägningstid. Om du tecknar ett tillsvidareavtal nollställs dina bosparpoäng för att söka hyresrätt.

Fakta om lägenheten
Sista anmälningsdag: 19 mars 2026
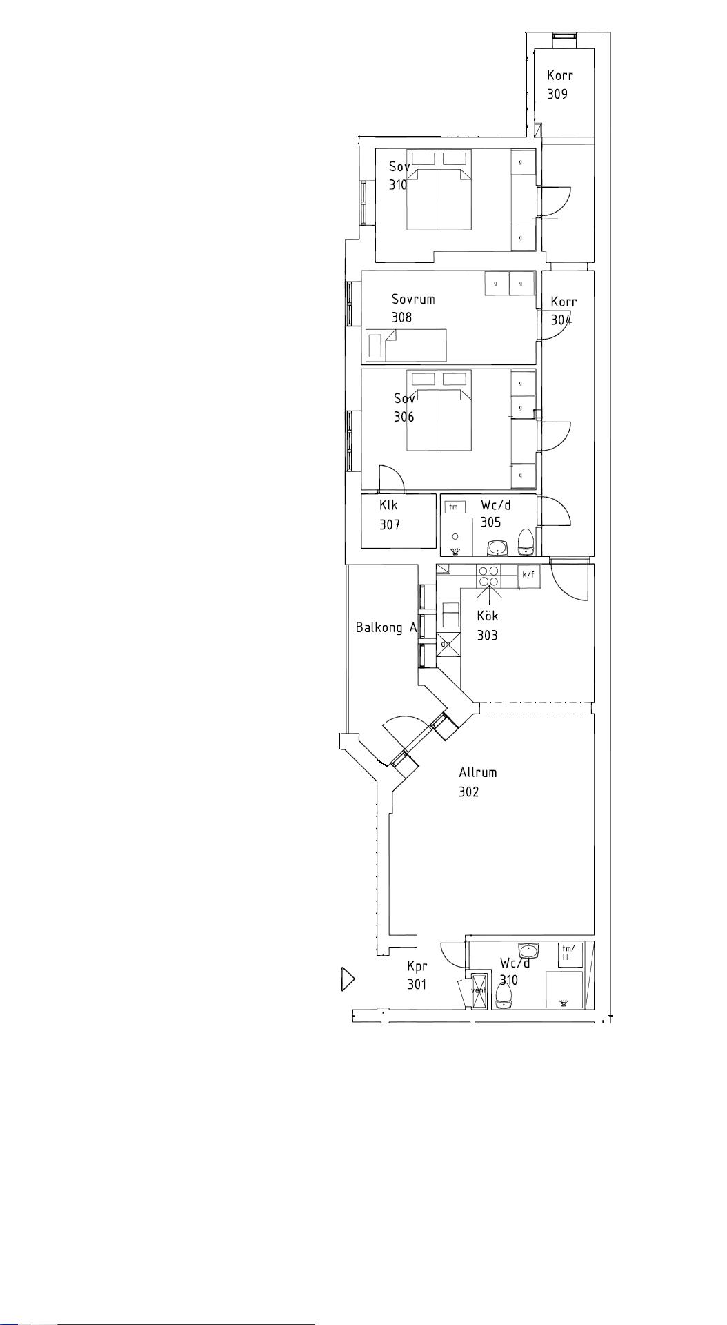
Antal rum 4
Area 109,2 kvm
Våning 3
Hyra 16421 Kr/månad
Lägenhetsnummer 33
Inflyttning 2026-05-01
Sista anmälningsdag: 2026-03-19
Kabel-Tv Ja
Hiss Nej
Kökstandard Diskmaskin
Bredband Ja
Badrumstandard Tvättmaskin, Dusch, Torktumlare
Balkong Ja
Standardhöjande åtgärder Säkerhetsdörr, Hällspis
Lägenhetskategori Bostad

Bilder