HSB BRF
Punkten 2
  • Sök
  • Logga in
  • Om föreningen
  • Nyheter
  • Kontaktuppgifter
  • Förtroendevalda
  • Arkiv
  • Länkar
    • Sökikon Sök
    • Logga in logo Logga in
    • Välj HSB förening för att se regionalt anpassat innehåll. Sökikon Välj HSB-förening
    Huvudmeny
    • Hem
    • Om föreningen
    • Våra lägenheter
    • Planlösning fyra rum & kök
    Om föreningen
      • Bra att veta!
      • Vicevärd
      • Fastighetsskötsel
      • Våra lägenheter
        • Planlösning två rum & kök
        • Planlösning två/halv rum & kök
        • Planlösning 3 rum & kök
        • Planlösning fyra rum & kök
      • Stadgar
      • Årsredovisning
      • Motioner
      • Informationsblad

    Planlösning fyra rum & kök

    Lgh 13.jpg Hämta
    Lgh 16, 19, 22, 28, 30, 32, 88, 90, 92, 94, 98, 101, 104.jpg Hämta
    Lgh 25.jpg Hämta
    Lgh 39, 43, 47, 51, 55, 59, 63, 67, 71, 75.jpg Hämta
    Lgh 76.jpg Hämta
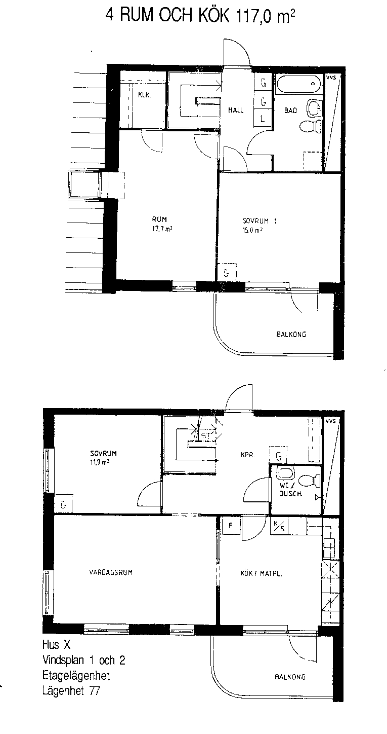
    Lgh 77.jpg Hämta
    Visa fler
    Visa färre

    BRF Punkten 2

    Poesigatan 22
    703 71
    Örebro
    vicevard.punkten2@bredband.net

    Webbansvarig:

    Besök HSB.se
    Läs mer om cookies här
    Cookieinställningar
    Redigera hemsida