Vi stödjer inte längre, fullt ut, webbläsaren Internet Explorer (version 11 eller tidigare) då detta är en gammal webbläsare som inte längre underhålls av Microsoft och inte fungerar med modernare webbteknik. Därför rekommenderar vi att ni istället använder er av någon av dessa webbläsare: Google Chrome, Mozilla Firefox, Microsoft Edge eller Apple Safari

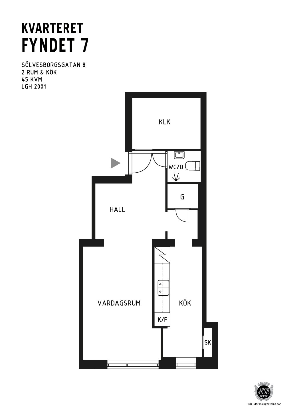
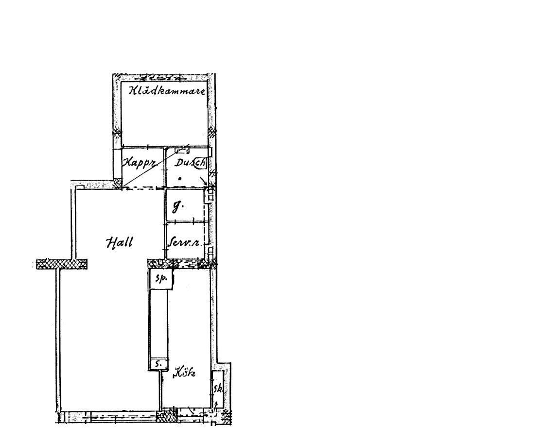
Sölvesborgsgatan 8

Malmö, Möllevången
Fin en- och en halva centralt i Malmös hjärta.

Här bjuds ni med på en digital rundvandring i den aktuella lägenheten:

https://hsbonline.sharepoint.com/:f:/s/21-sundsfastextern/EnErbUwjJG9OriAYL5LwusEB7wlnc0TRxAExWUOE0xRgfA?e=pVa1Ik

Kök med mindre matplats.
Gasspis.

Kaklad dusch.

Lägenheten ligger ett stenkast från både Triangeln och Möllans myller. Den miljömedvetne pendlaren kommer till stationen på 10 minuter.

Tvättstugorna ligger i källaren.

Ingen hiss.

Bredband och kabel-tv i fastigheten.
-
Alla är välkomna att söka HSB Malmös hyreslägenheter, men de tilldelas i första hand dem som är medlemmar och bosparar hos HSB. Ni hittar mer info om vad det innebär att vara bosparare på https://www.hsb.se/malmo/bospar/sa-borjar-du.

HSB Malmös uthyrningspolicy hittar ni här: https://www.hsb.se/malmo/uthyrningspolicy

Glöm inte dubbelkolla så att dina kontaktuppgifter finns med så att vi kan nå dig vid ett eventuellt erbjudande.

-

Tillsvidarekontrakt

Tillsvidarekontrakt med tre månaders uppsägningstid. Om du tecknar ett tillsvidareavtal nollställs dina bosparpoäng för att söka hyresrätt.

Fakta om lägenheten
Sista anmälningsdag: 14 april 2026
Antal rum 1,5
Area 45,0 kvm
Våning 1
Hyra 7125 Kr/månad
Lägenhetsnummer 2001
Inflyttning 2026-07-01
Sista anmälningsdag: 2026-04-14
Bredband Ja
Lägenhetskategori Bostad
Kabel-Tv Ja
Balkong Nej
Standardhöjande åtgärder Hällspis

Bilder