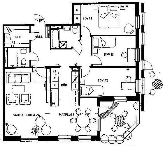
Planlösning 4 rum och kök

Brf Billegården har fyra olika typer av lägenheter med 4 rum och kök. Totalt finns det 22 fyror i föreningen.

Lägenhetstyp D
Antal rum: 4 rum och kök
Yta: 95 kvm
Det finns 4 stycken lägenheter av denna typ.

Lägenhetstyp E
Antal rum: 4 rum och kök
Yta: 109 kvm
Det finns 4 stycken lägenheter av denna typ.

Lägenhetstyp L
Antal rum: 4 rum och kök
Yta: 115,5 kvm
Etagelägenhet i två våningar.
Det finns 8 stycken lägenheter av denna typ.

Lägenhetstyp P
Antal rum: 4 rum och kök
Yta: 115,5 kvm
Etagelägenhet i två våningar.
Det finns 6 stycken lägenheter av denna typ.