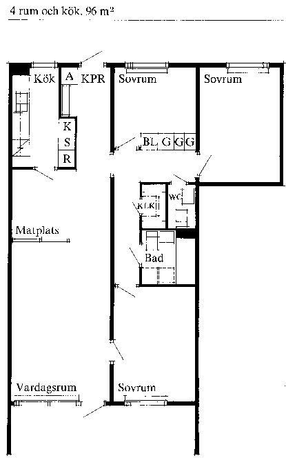
Planritningar

Observera att det som visas på dessa sidor inte kan användas för att göra mätningar. Vad som visas är lägenhetsritningarna som de såg ut vid byggandet. Lägg också märke till att många lägenheter under åren byggts om, och stämmer därför i varierande grad med planritningarna nedan.

Planritningarna för 2:orna på 62 kvm och på 66 kvm är desamma. Vardagsrum och sovrum är sinsemellan helt identiska i storlek och layout.

Observera att det som visas på dessa sidor inte kan användas för att göra mätningar. Vad som visas är lägenhetsritningarna som de såg ut vid byggandet. Lägg också märke till att många lägenheter under åren byggts om, och stämmer därför i varierande grad med planritningarna nedan.