Vi stödjer inte längre, fullt ut, webbläsaren Internet Explorer (version 11 eller tidigare) då detta är en gammal webbläsare som inte längre underhålls av Microsoft och inte fungerar med modernare webbteknik. Därför rekommenderar vi att ni istället använder er av någon av dessa webbläsare: Google Chrome, Mozilla Firefox, Microsoft Edge eller Apple Safari

HSB Norr bygger 10 nya hyresrätter i Skellefteå

Nu har du chans att knipa en helt nyproducerad hyreslägenhet. Som en hållbar samhällsaktör bygger HSB Norr tio nya hyresrätter på Tjärhovsgatan 12 mitt i centrala Skellefteå. De nya hyresrätterna är inflyttningsklara januari 2021 och bosparande medlemmar har möjlighet till förtur!

Lägenheterna får en hög standard med bland annat vitt kök från Electrolux, ek-parkettgolv, badrum med våtrumsmatta och golv-komfortvärme. Nästan alla lägenheter får nyrenoverade balkonger som färdigställs vintern 2021. Två av lägenheterna får dessutom helt nya balkonger med inglasning.

Hur är området?
Tjärhovsgatan ligger ett stenkast från Skellefteå centrum. Här bor du med stadens puls i närheten av både butiker och restauranger. Du har också nära till goda kommunikationer med lokaltrafik och med promenadavstånd till busstation.

Vill du hyra någon av lägenheterna?
Håll utkik, lägenheterna kommer ut för intresseanmälan den 26 oktober på hsb.se/norr/sokboende. 

Bli bosparare och få möjlighet till förtur
Som bosparande medlem har du möjlighet till förtur på både på hyresrätter och nyproducerade bostadsrätter - i hela landet.

Bli medlem och börja bospara i HSB

Rumsbeskrivning

GOLV & VÄGG Vita målade väggar, 3-stavigt ekparkettgolv i kök och sovrum, gråsvart plastmatta på golv och ljusgrå plastmatta på vägg i badrum och vita snickerier. Ek-färgat laminatgolv i hall.

BADRUM Gråsvart plastmatta på golv med komfortvärme och ljusgrå plastmatta på väggar. Tvättställ med kommod, spegelskåp och duschvägg. Samtliga badrum förbereds för tvättmaskin och torktumlare för de som önskar att köpa och montera själv. 

KÖK  Vita släta kökluckor från Elelctrolux (över och underskåp) och vitt kakel. Kyl och frys, spis med keramik häll och ugn samt diskmaskin.

FÖRVARING Garderober i alla lägenheter. Alla lägenheter med 3 rum har också en klädkammare i hallen. 

VENTILATION Ventilationen består av ett mekaniskt till- och frånluftssystem med värmeåtervinning, Köksfläkt.

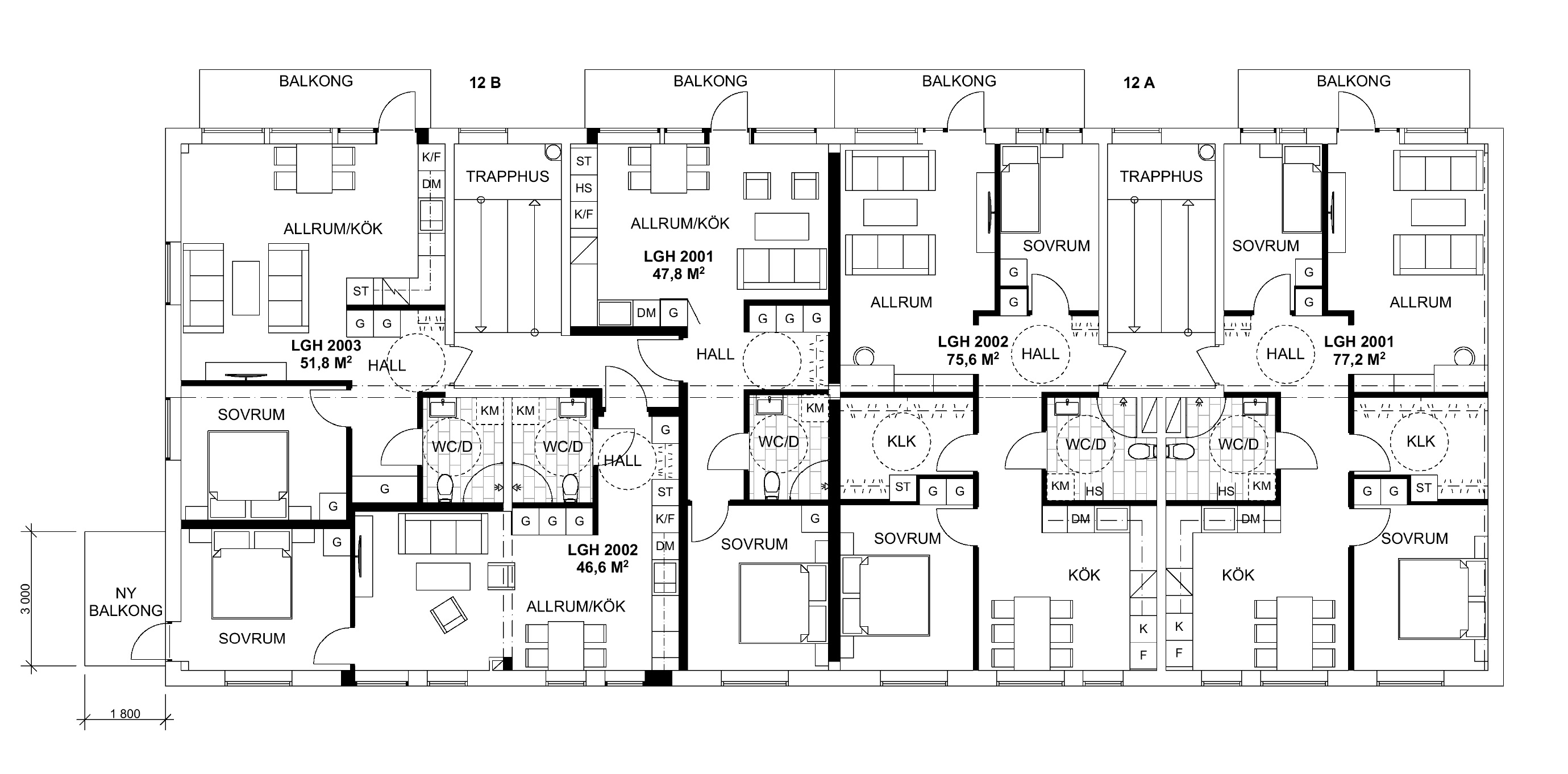
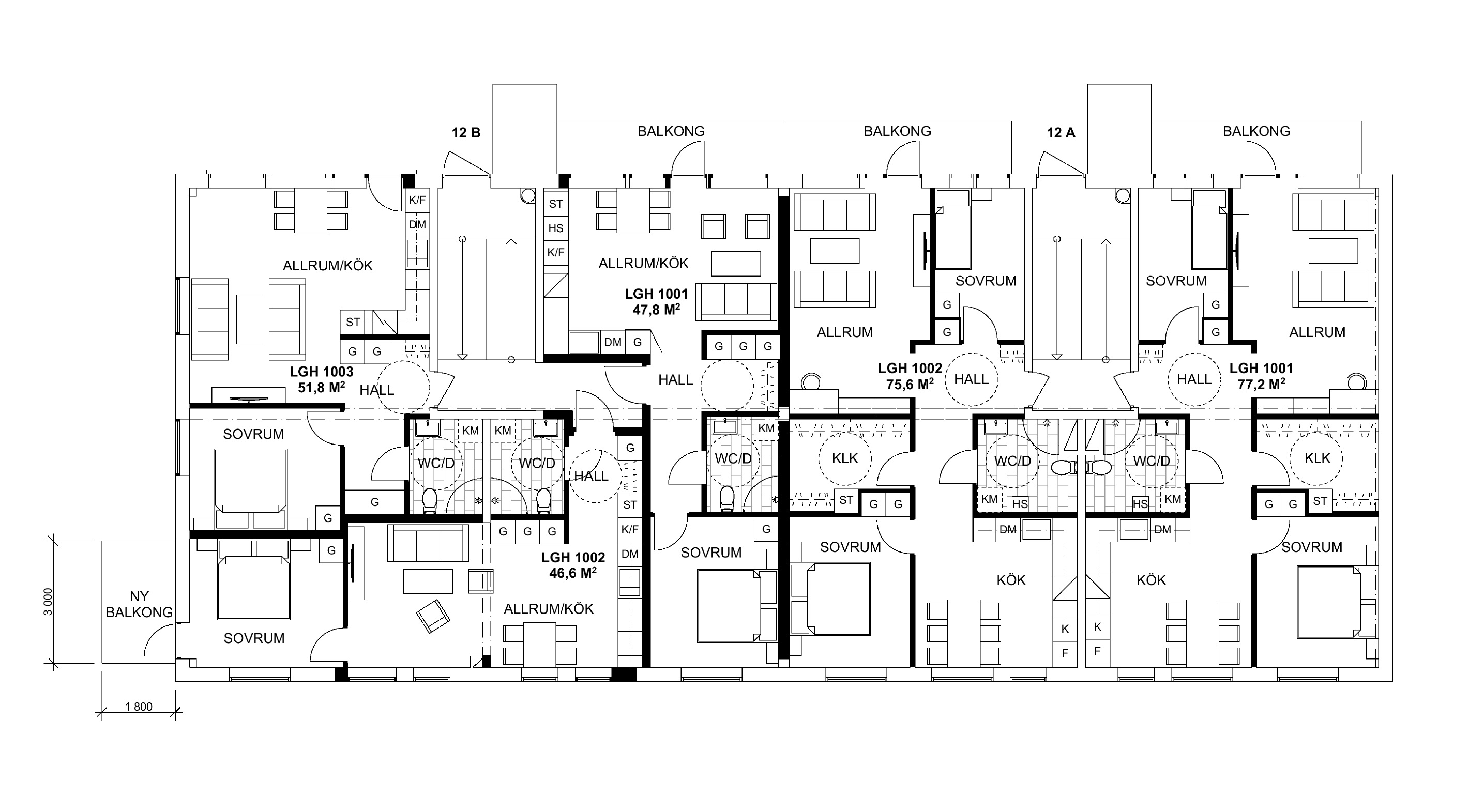
Lägenhetsfakta

Adress: Tjärhovsgatan 12A och 12 B
Antal lägenheter: 10 (28 befintliga sedan tidigare)
Storlek: 2-3 rum och kök
Typ: Hyresrätt
Balkong: De flesta lägenheter har balkong och en har fransk balkong.
Våningar: 2
Hiss: Nej
Tvättstuga: Ja
Förråd: I källare
Parkering: Parkering i form av garage och p-stolpe med motorvärmarplats finns att hyra och kötid förekommer.

Lägenhetsfördelning över nya lägenheter

Tjärhovsgatan 12A
2 st 3 rok 77 m2 med balkong
2 st 3 rok  77 m2 med balkong

Tjärhovsgatan 12B
2 st 2 rok 52 m2 En med balkong och en utan.
2 st 2 rok 48 m2 med balkong
2 st 2 rok 47 m2 med balkong

Våning 1: 5 lägenheter (3 st 2:or, 2 ts 3:or.
Våning 2: 5 lägenheter (3 st 2:a och 2 st 3:or.

BREDBAND, TV och TELEFON
Kabel TV – basutbud ingår i avgift.  Bredband via Telenor och hyresgäst tecknar eget abonnemang.

VÄRME, VATTEN & EL
Hyresgästen tecknar eget abonnemang för hushållsel.

KÄLLSORTERING
Källsorteringsrum finns på gården med behållare för brännbart, papper, kartong, matavfall, glas mm. 

Parkering och garage

Önskemål om parkeringsplats eller garageplats anmäls till kundservice i samband med intressenamälan till respektive lägenhet. Köslista förekommer.
P-plats, med motorvärmarstolpe: 380 kr/mån el ingår.
Garage: 610 kr/mån

Så fördelas lägenheterna

Lägenhetsfördelning – så går det till
När tiden för intresseanmälan gått ut sorterar HSB Norr intresseanmälningarna enligt turordningen nedan.

  1. Bosparande medlemmar i HSB, efter antal bosparpoäng.
  2. Medlemmar i HSB, efter inträdesdatum.
  3. Allmänheten efter ansökningsdatum och tid.

Vi tar sedan kontakt med de fem första enligt vår turordning. Den medlem som har mest bosparpoäng samt varit medlem längst har störst chans att få en hyreslägenhet.

– Om du anmält intresse för förtur till en bostad som finns i en annan HSB-förening än den du är medlem i, ska du senast vid tidpunkten när bindande avtal tecknas för bostaden, vara medlem i den HSB-förening där bostaden finns.

Inflyttning är från januari 2021.

Anmäl ditt intresse här!

Från den 26 oktober finns alla lägenheter publicerade för intresseanmälan. Välkommen med din ansökan!